about
blog
current
2015
2014
eugenie bliah
chris bisset
kate finning
edward pepper
jonathan skerritt
about
blog
current
2015
2014
eugenie bliah
chris bisset
kate finning
edward pepper
jonathan skerritt
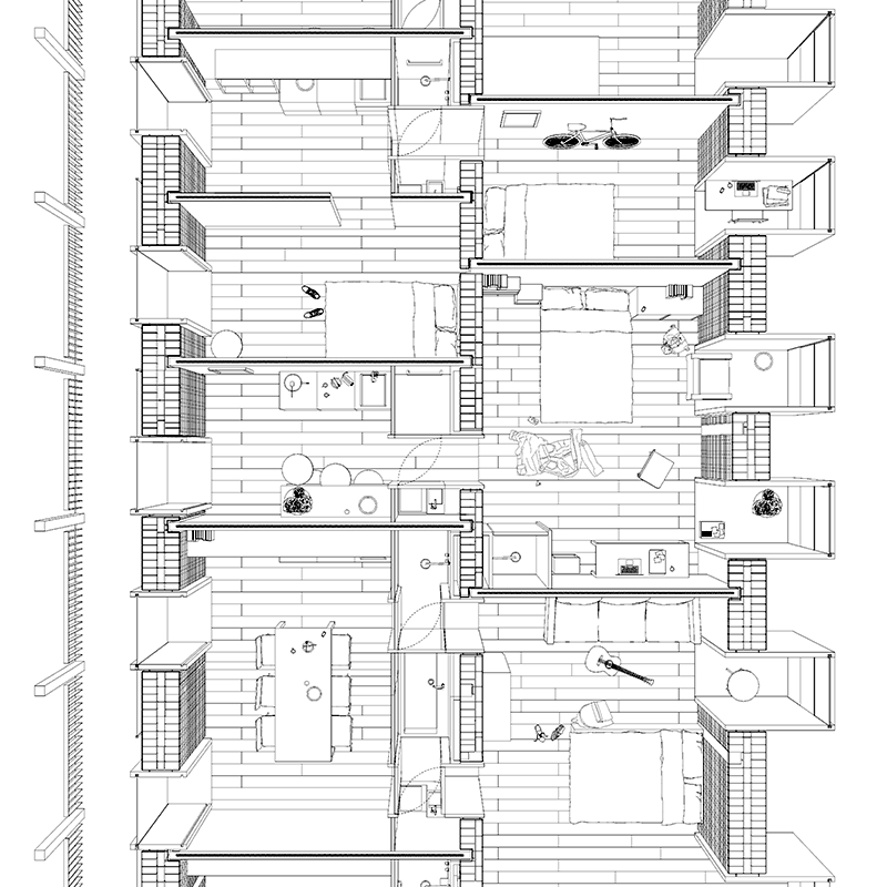
EDWARD PEPPER
The Boundary Estate

The units can be merged to form different typologies.